• 駅名から探す
  • エリアから探す
  • お役立ちコラム
  • オフィスから民泊
  • 物件探し依頼

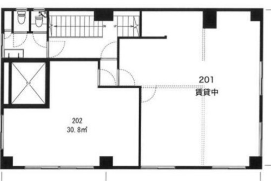
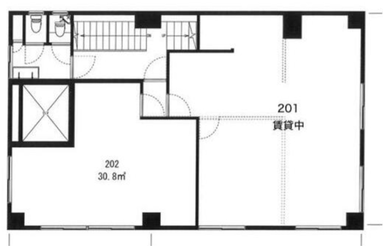
OFFICE 中富水産本社ビル2階部分

図面プレビュー

OVERVIEW概要

築地六丁目の「中富水産本社ビル」2階・30.80㎡(9.32坪)の貸事務所。
賃料104,500円+管理費5,500円、保証金6ヶ月(627,000円・解約時20%)。
RC造B2F/地上6Fの2階区画、1966年築。ネット対応・給湯・エアコン・24時間利用可・角部屋、飲食不可。現況空きで即入居可。日比谷線「築地」徒歩6分、有楽町線「新富町」徒歩9分。
周辺は築地本願寺・築地魚河岸、コンビニ等が近く利便性良好。

  • 賃料(坪単価)
  • 104,500円 (坪単価11,212円)
  • 管理費(坪単価)
  • 5,500円(坪単価590円)
  • 敷金/礼金
  • 円 / 円
  • 保証金/償却/敷引き
  • 627,000円 / 解約時20% /
  • 階数/所在階
  • 地下2階地上6階建て/2階
  • 構造
  • 鉄筋コンクリート(RC)
  • 面積/用途
  • 9.32坪(30.80㎡) / 貸オフィス
  • 築年月
  • 1966.10
  • 所在地
  • 東京都中央区築地六丁目13-3MAP
  • 東京メトロ日比谷線 築地徒歩6分
  • 東京メトロ有楽町線 新富町徒歩9分
  • 都営大江戸線 勝どき徒歩10分

FACILITY設備

    • ネット対応
    • 給湯
    • エアコン
    • 24時間利用可
    • 角部屋
    • 飲食店不可
    • 現況
    • あき
    • 入居
    • 即日
    • 取引態様
    • 仲介
    • 仲介手数料
    • 50%
    • 契約期間
    • 2年
    • 駐車場
    • なし

    保証金 6ヶ月 解約時20% 賃貸保証 加入要 ◇ジェイリース 初回保証委託料100% 継続保証委託料10% 保険等加入 加入要 / 借家人賠償責任付火災保険 2年間

    MAPマップ

    [レジャー・観光] はとば公園まで114m [コンビニ] ローソンストア100築地7丁目店まで117m [ショッピング施設] ニューみ乃り屋まで127m [レジャー・観光] 築地魚河岸まで420m [飲食店] オリジン弁当築地店まで158m [コンビニ] セブンイレブン築地7丁目店まで244m [レジャー・観光] 勝どき橋まで385m [レジャー・観光] 築地本願寺まで346m

    中富水産本社ビル動画