• 駅名から探す
  • エリアから探す
  • お役立ちコラム
  • オフィスから民泊
  • 物件探し依頼

OFFICE 小野商ビル7階

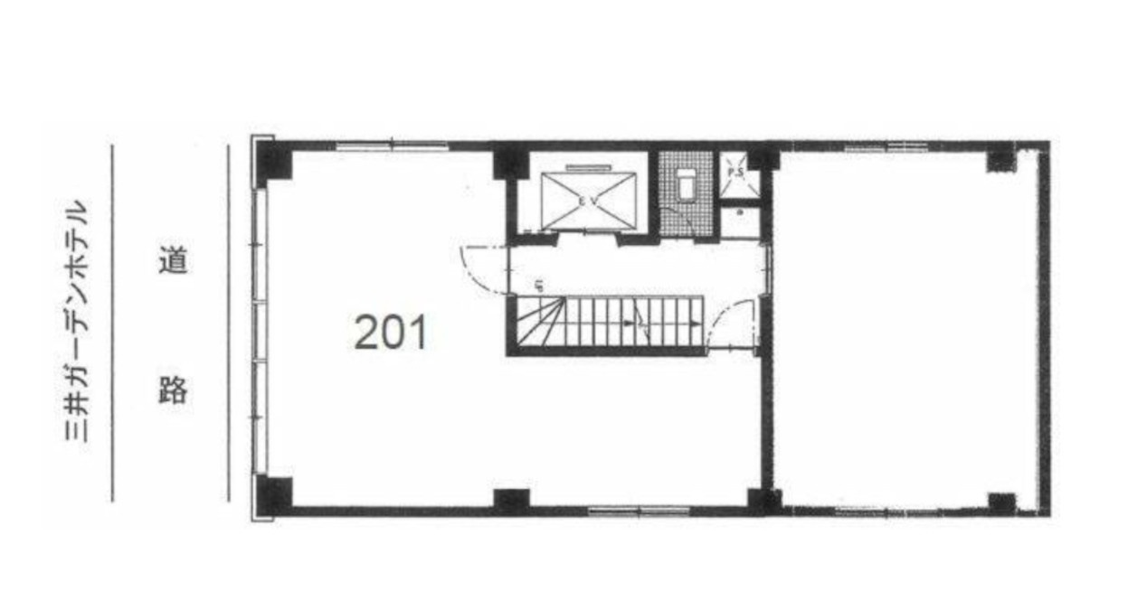
図面プレビュー

OVERVIEW概要

銀座8丁目12-6「小野商ビル」7階の貸オフィス。JR新橋駅徒歩4分、東銀座徒歩5分、銀座徒歩7分で複数路線が使える好立地。
賃料264,000円+管理費49,500円、保証金960,000円(解約時1ヶ月償却)。SRC造・1961年築・地上7階建の最上階区画で、EV・個別空調/エアコン・光ファイバー・トイレ完備。
契約2年、更新料は新賃料1ヶ月。火災保険必須、保証会社契約の可能性あり。エントランス8〜19時、時間外はカードキー入館。
入居中につき入居時期は相談、目安は2026年1月下旬。民泊/レンタルスペース等は不可。銀座アドレスで来客の導線も良く、士業・IT・小規模事務所の拠点に向きます。内見予約はお早めに。

  • 賃料(坪単価)
  • 264,000円 (坪単価円)
  • 管理費(坪単価)
  • 49,500円(坪単価---)
  • 敷金/礼金
  • 円 / 円
  • 保証金/償却/敷引き
  • 960,000円 / 解約時1ヶ月 /
  • 階数/所在階
  • 地上7階建て/7階
  • 構造
  • 鉄骨鉄筋コンクリート(SRC)
  • 面積/用途
  • / 貸オフィス
  • 築年月
  • 1961.10
  • 所在地
  • 東京都中央区銀座八丁目12-6MAP
  • JR山手線 新橋徒歩4分
  • 東京メトロ日比谷線 東銀座徒歩5分
  • 東京メトロ日比谷線 銀座徒歩7分

FACILITY設備

    • エレベーター
    • 個別空調
    • エアコン
    • 個別空調
    • 光ファイバー
    • トイレあり
    • 現況
    • 入居中
    • 入居
    • 相談
    • 取引態様
    • 仲介
    • 仲介手数料
    • 契約期間
    • 2年
    • 駐車場

    保証金償却 解約時1ヶ月 更新料 新賃料 1ヶ月 ■貸主指定の保証会社と保証委託契約を締結して頂く場合がございます ■火災保険加入必須 ■エントランス:8時~19時(時間外はカードキーにて入館可) ■民泊・レンタルスペース・貸会議室・民泊不可 ■入居可能日:2026年1月下旬

    MAPマップ

    マツモトキヨシ銀座8丁目店 ナチュラルローソン 銀座三井ビル店 ファミリーマート 銀座御門通り店 セブンイレブン 銀座7丁目中央店