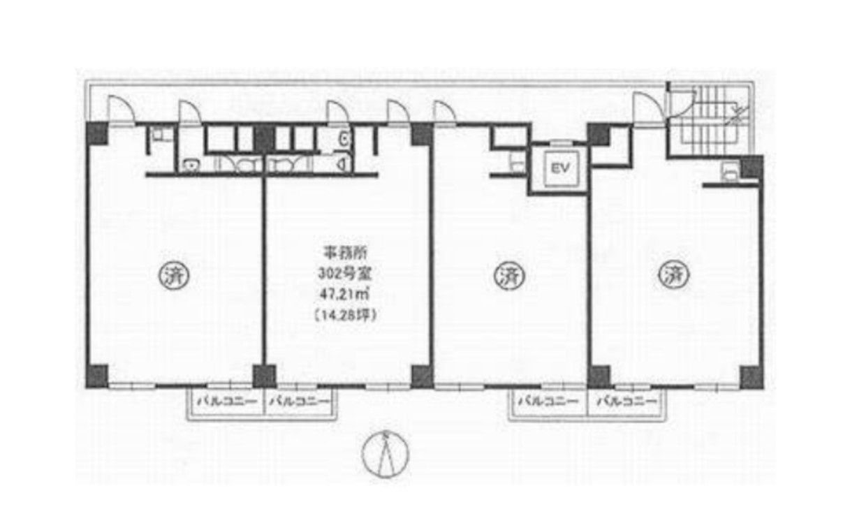
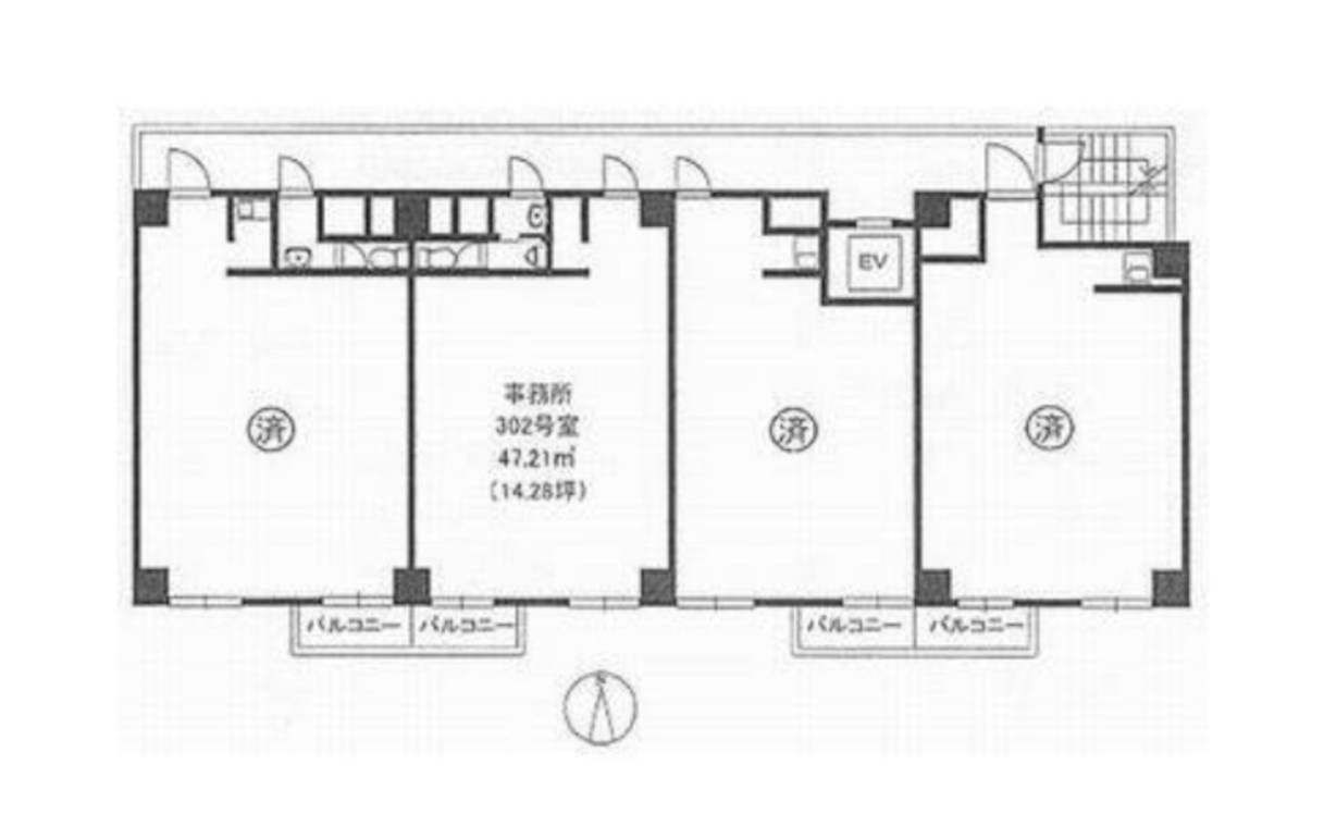
仲御徒町駅徒歩2分の好立地!「御徒町グリーンプラザ」3階・約14.99坪(49.55㎡)の貸オフィスです。
賃料187,000円(坪12,475円)+管理費33,000円で、都営大江戸線「上野御徒町」徒歩4分/JR「御徒町」徒歩5分も使えるのが強み。
エレベーター・有人警備・エアコン・光ファイバー完備、24時間利用可。共用部に男女別トイレ、水道料は月3,000円(税別)。入居中ですが入居時期は相談OK、まずは下見予約がおすすめ!

礼金 1ヶ月 保証金 4ヶ月 水道料:3,000円/月 保証会社要加入 水道費月額金3000円(別途消費税) 24時間使用可能 更新料 新賃料 1ヶ月
[コンビニ] セブンイレブン台東4丁目店まで77m [中学校] 台東区立御徒町台東中学校まで179m [銀行] 三井住友銀行上野支店まで178m [販売店] 多慶屋まで217m [ショッピング施設] まいばすけっと仲御徒町店まで227m [郵便局] 台東三郵便局まで271m [飲食店] ジョナサン御徒町店まで402m [ショッピング施設] ユニクロ御徒町店まで535m
オフィスかいはつぶ
東京都千代田区内神田2-9-9 神田西口ビル5F
神田駅から歩いて5分 TEL:03-3849-7590
〉運営会社〉個人情報保護方針