• 駅名から探す
  • エリアから探す
  • お役立ちコラム
  • オフィスから民泊
  • 物件探し依頼

OFFICE 山喜ビル6F

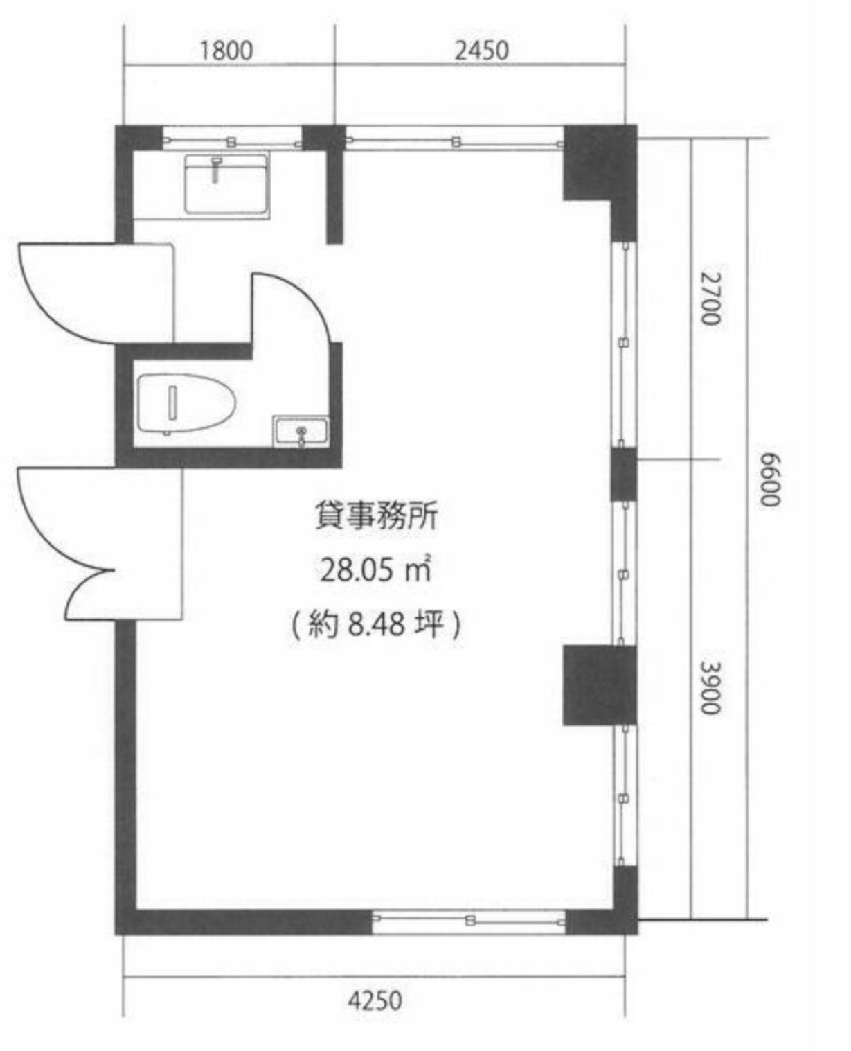
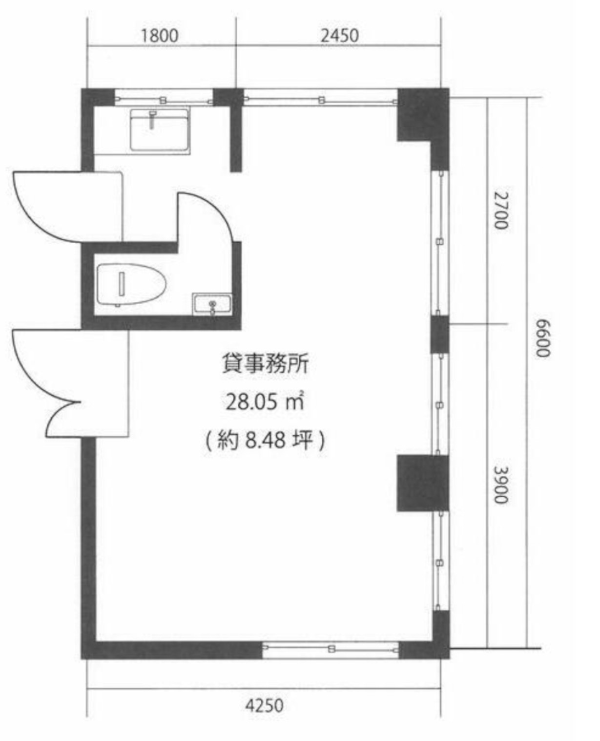
図面プレビュー

OVERVIEW概要

御徒町エリアでコンパクトな拠点をお探しなら「山喜ビル6F」がおすすめ。
JR御徒町徒歩6分、仲御徒町徒歩4分、新御徒町徒歩5分と複数路線が使えて通勤・来客も便利。8.49坪(28.05㎡)、賃料11万円+管理費1.65万円。
最上階×角部屋×1フロア1テナントで静かに使え、専用トイレ・給湯・エアコン・EV完備。2020年に水回り含む全面改装済みで室内も明るく、即入居OKです

  • 賃料(坪単価)
  • 110,000円 (坪単価12,956円)
  • 管理費(坪単価)
  • 16,500円(坪単価1,943円)
  • 敷金/礼金
  • 円 / 円
  • 保証金/償却/敷引き
  • 660,000円 / /
  • 階数/所在階
  • 地上6階建て/6階
  • 構造
  • 鉄筋コンクリート(RC)
  • 面積/用途
  • 8.49坪(28.05㎡) / 貸オフィス
  • 築年月
  • 1972.02
  • 所在地
  • 東京都台東区台東四丁目5-2MAP
  • JR山手線 御徒町徒歩6分
  • 東京メトロ日比谷線 仲御徒町徒歩4分
  • 都営大江戸線 新御徒町徒歩5分

FACILITY設備

    • エレベーター
    • 給湯
    • 専用トイレ
    • エアコン
    • 角部屋
    • 最上階
    • 1フロア1テナント
    • 専有部分にトイレあり
    • 現況
    • あき
    • 入居
    • 即時
    • 取引態様
    • 仲介
    • 仲介手数料
    • 50%
    • 契約期間
    • 2年
    • 駐車場

    保証金 6ヶ月 保証金償却 解約時2ヶ月 加入要 / 火災保険 2年間 18,500円 保証金償却 解約時2ヶ月 賃貸保証 加入要 保証人+プレミアライフ初回100% 更新1年毎に10% 更新料 新賃料 1ヶ月 リフォーム履歴 ■水回り:2020年04月 キッチン トイレ 洗面所 給排水管 給湯器 ■内装:2020年04月 内装全面(床・壁・天井・建具) ■外装:2019年10月 外壁 上下水道料月額3000円+TAX  全面改装済み 3面採光の明るい室内 

    MAPマップ

    まいばすけっと仲御徒町店 セブンイレブン 台東4丁目店 ミニストップ 台東3丁目店 ファミリーマート 台東四丁目店